Przesuwanie i obrót budynku
Projektowanie to nie zawsze proces tworzenia nowego produktu od podstaw. To bardzo często praca bazująca na wcześniejszych dokonaniach. Wykorzystanie całych konstrukcji lub tylko jej fragmentów poprzez kopiowanie, odbicie lustrzane czy obracanie może przynieść znaczące skrócenie czasu potrzebnego do zakończenia projektu.
Narzędzia z grupy budynek dostępne w module ŚCIANA 2 - budynek/wiązar – 01/02/03/04 sprawią, że będzie to zadanie proste i precyzyjne. W połączeniu z możliwością scalania różnych obiektów możemy konfigurować obiekt z dowolnych części składowych.
Edycja budynków jest procesem o charakterze globalnym. Zmiana położenia dotyczy zarówno elementów architektonicznych, konstrukcyjnych oraz pomocniczych (np kombi-bloki, okucia inżynierskie). Zmiana położenia ściany pociąga za sobą zmianę położenia jej konstrukcji, płytowania, punktów elektrycznych oraz łączników.
Oto co możemy zrobić z zaprojektowanym przez nas budynkiem:
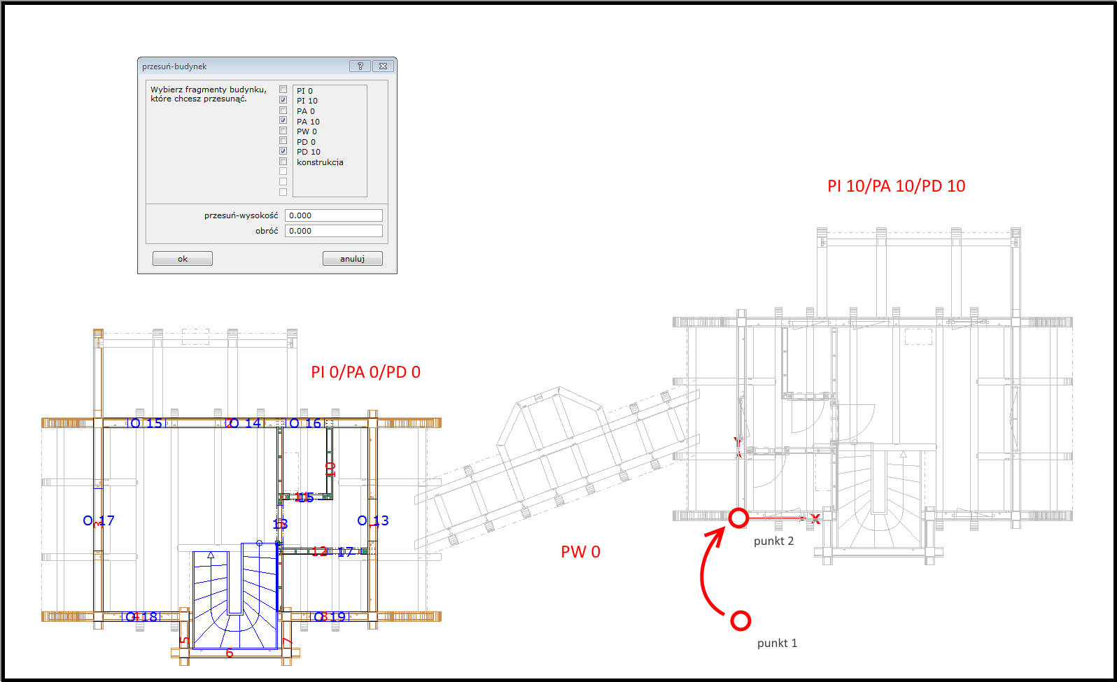
Przesuń
Funkcja pozwala przesunąć cały lub tylko wybrane części budynku w płaszczyźnie XoY. Należy zaznaczyć elementy struktury podlegające przesunięciu. Do tego celu służą pola wyboru (checkbox) przy nazwach części konstrukcji budynku. Procedura przesunięcie realizowana jest metodą graficzną. Należy wskazać punkt bazowy, a następnie punkt docelowy przeunięcia. Dodatkowe opcje tego narzędzia pozwalają:
przesuń-wysokość - pozwala zmienić pozycję wybranych elementów budynku w osi Z - wartość przesunięcia z +/- (do góry/do dołu)
obrócić – obraca wokół osi Z wybrane fragmenty budynku o dowolny kąt
Przykład zastosowania
Ustawienie w odpowiedniej pozycji budynku względem układu współrzędnych. Istotne przy eksporcie do innych programów. Ułatwia również poprawny import modeli z innych projektów Dietrich's

UWAGA
Jeśli podczas importu nie zostanie wybrany zarówno punkt bazowy jak i docelowy, obiekt zostanie zaimportowany w miejsce oryginalnego położenia.
Korekta położenia dwóch budynków w jednym pliku względem siebie.

Obróć
Funkcja posiada identyczne okno jak narzędzie przesuń. Tak jak poprzednio należy dokonać wyboru, które części budynku podlegają rotacji. Do tego celu służą pola wyboru (checkbox) przy nazwach części konstrukcji budynku. Wybrane części budynku zostaną obrócone wokół osi Z o wpisaną wartość kątową po wskazaniu punktu obrotu. Kierunek rotacji określa wartość kąta: dodatnia - przeciwnie do ruchu wskazówek zegara, ujemna - zgodnie z ruchem wskazówek zegara. Analogicznie jak w narzędziu przesuń możemy dodatkowo zmienić ich położenie w osi Z opcją przesuń-wysokość.
Przykład zastosowania
Dostosowanie orientacji budynku do przestrzeni roboczej monitora lub układu wydruku dokumentacji.

WAŻNE:
Przed użyciem wymienionych narzędzi należy sporządzić kopię zapasową obiektu! Usunięcie ewentualnych niechcianych zmian może okazać się niemożliwe.
Last updated
Was this helpful?
